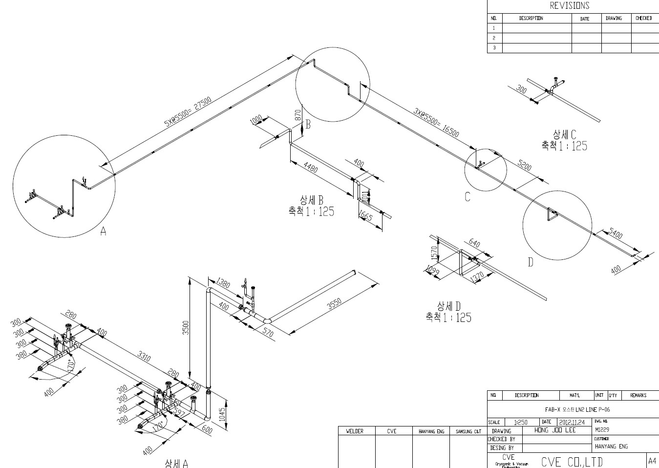
LN2 진공단열배관 / 삼성전자, 오스틴 FAB X
- 진공단열배관
Customer :
HanYang Eng.
Technical Features : Welding (heat bridge) type connection
– Size (Outer/Inner), Length
. 0.5” Line : 1.5”/0.5”, 70 m
. 1” Line : 2.5”/1”, 55 m
. 1.5” Line : 4”/2.5”, 102 m
– Design Pressure (supply) : 10bar
LN2 진공단열배관 / 삼성전자, 오스틴 FAB X
- 진공단열배관
Customer :
HanYang Eng.
Technical Features : Welding (heat bridge) type connection
– Size (Outer/Inner), Length
. 0.5” Line : 1.5”/0.5”, 70 m
. 1” Line : 2.5”/1”, 55 m
. 1.5” Line : 4”/2.5”, 102 m
– Design Pressure (supply) : 10bar